办公空间设计结课汇报
课程简介
办公空间设计是环境设计专业的一门核心课程,本课程以办公空间作为载体,主要通过办公空间的管理模式、人流动线的分析、策划,以合理的平面布局为出发点,把内部管理与对外形象相结合作为空间研究的主题,并针对不同的企业文化,营造出不同特色的办公空间氛围。课程要求学生严格按照平面功能配置,即管理层、办公人员与办公设备组成的空间要求,对设计目标做出合理的空间布局,达到有效利用空间的设计目标。
课程信息

课程类型:专业必修课/专业组选课
授课教师:李怡
总学时:48学时
学分:3学分
授课专业:环境设计
授课班级:22环境设计1班;22环境设计
2班;23环境设计(专升本)1班
开课学期:2023-2024学年 第一学期
教学设计
第一阶段:了解办公空间设计的基本概念、分类及未来发展趋势,培养学生对社会热点问题的关注。在课程思政方面,引导学生将所学理论与社会实践相结合,以进一步加强科学思维与设计的预见性;
第二阶段:本阶段旨在让学生深入学习办公空间设计的程序与方法,包括办公空间设计原理、人体工程学、心理活动的应用等。通过强调实际工作需求,培养学生的设计专业素养;
第三阶段:学生将运用所学相关理论,以小组为单位完成一套完整的办公空间设计方案,着重考虑功能性、美观性和实用性,同时提升创新思维和团队协作能力。具体内容包括平面图、立面图等施工图及效果图的绘制,旨在培养学生对办公空间的统筹与规划能力,提高其对设计元素的理解与运用能力;
第四阶段:设计综合实践与展示,本阶段注重学生对办公空间设计理论知识的综合应用。学生将展示他们的设计方案,强调设计理念和实际应用,并通过综合实践进一步加深对空间体量、材质、比例、色彩等方面的直观体验。同时,强调设计的可持续性,培养学生的形象思维和创新能力;
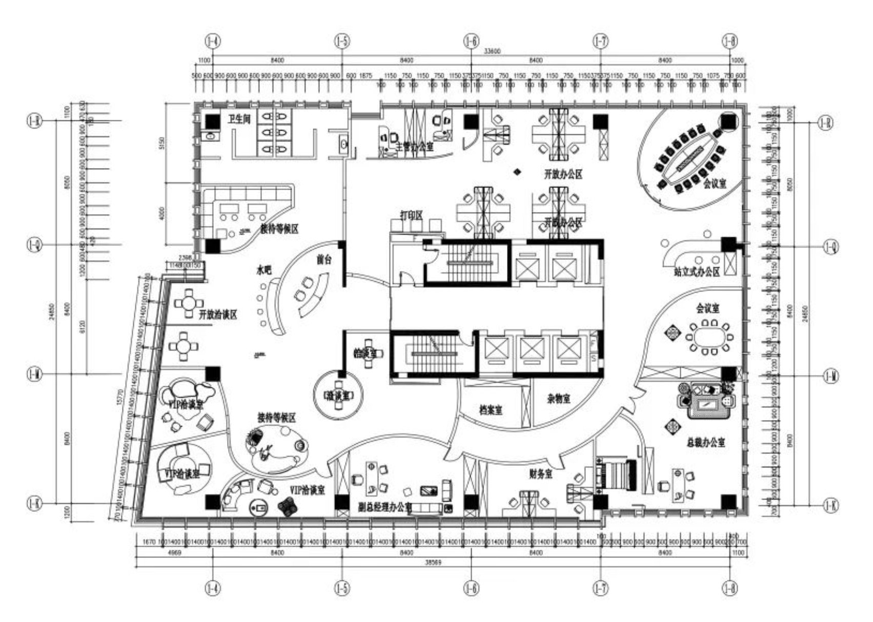
学生设计
GOOBGS服装设计有限公司
徐海涛 黎浩宇 梁启钊

平面布置图

总裁办公室

员工办公区

员工办公区
菲拉格慕服装设计有限公司
李雪鑫 陈浩

办公建筑设计
克丽缇娜贸易有限公司
吴思仪 吴雨娃 温子莹

直播间

洽谈区

开放办公区

开放办公室

总裁办公室

小型会议室
蓝天下传媒公司空间设计
何俊杰 李嘉豪 朱隆东
![]()
平面布置图

开放办公区

开放办公区二

前台接待区
柠川传媒文化有限公司
罗奕娴 方璟怡 林嘉仪

平面布置图

前台接待区

开放办公区

洽谈区
尚海郦景售楼部
黄文妹 卓依芸

建筑效果图

沙盘区

洽谈区

吧台区
尚泽投资控股有限公司
罗婉仪 谈烨梆 谢昊

平面布置图

前台接待区

中型会议室

中型会议室
戏构建筑设计工作室
赵敏榕 周谦竹 徐竹青

平面布置图

茶水间

室内造景区

接待室

开放办公区

开放办公区二
教学反思
1.培养科学思维:即需要在理论课程教学中结合实际设计项目,培养学生将理论知识应用于实际方案设计中,从而进一步提高分析和解决问题的能力,以科学的思维方式优化设计方案;
·
2.培养设计思维:可以通过增加建筑、室内空间设计案例赏析,开阔学生的设计视野和设计思维,培养学生设计思维的表达能力、设计创造能力和表现能力;
·
3.加强素材积累:还可以通过课程教学进一步培养学生的自主学习能力,有目的、有针对性的进行该门课程的学习,整理收集并积累空间设计类相关资料和素材,为日后学习本专业的其他相关课程打下坚实的理论与实践基础。
结课照片

23环境设计(专升本)1班 合影
初审|赵丽婷
复审|王海宾老师
终审|袁希佳老师